Sigurnosna zaklopka
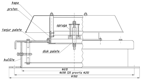
Sigurnosna zaklopka ugrađuje se na spremnike sa fiksnim krovom za lako hlapljive tekućine. Služi kao sigurnosni odušak, dok se dišni ventil koristi kao normalni odušak. Sigurnosna zaklopka radi na principu odizanja palete (paleta je komplet koji se sastoji od poklopca sa vodilicom i brtve) kod razlike tlaka u spremniku i okolici. Nakon prestanka djelovanja pretlaka ili podtlaka paleta se vraća u početni položaj i nepropusno zatvara odušni otvor.
SIGURNOSNA ZAKLOPKA DN 600 (pretlak-potlak)

Ugradnjom sigurnosne zaklopke osiguravamo, da u slučajevima pojave prevelikog pritiska ili vakuma zaštitimo rezervoar od eksplozije. Izrađena je u kombinaciji materijala čelik- aluminij koja onemogućava pojavu iskrenja. Dijafragma je iz gume otporne na uskladišteni medij. Izbor materijala i sama konstrukcija zaklopke omogućavaju dugotrajan i siguran rad uz minimalno održavanje.
Standardno podešavanje zaklopke na pretlak je 0.50 kPa, a potlak 0.33 kPa, ili prema zahtjevu, kao i izbor materijala za izvedbu.