Dišni ventili
Dišni ventili nalaze glavnu primjenu kod rezervoara sa fiksnim krovom u naftnoj i petrokemijskoj industriji. Prema “Pravilniku o zapaljivim tekućinama” , Narodne novine 54/99, spremnici moraju imati normalni i sigurnosni odušak zatvorenog tipa.
Uloga dišnih ventila na odušnom otvoru rezervoara je sljedeća:
- sprječavanje porasta tlaka u rezervoarima usljed popunjenja rezervoara medijem ili porasta temperature okoline
- sprječavanje pojave vakuma u rezervoaru zbog pražnjenja rezervoara ili pada okolišnje temperature
- sprječavanje prodiranja raznih nečistoća u rezervoar
Dišni ventil radi na principu podizanja palete (paleta je poklopac s vodilicom i brtvom) zbog razlike tlaka u spremniku i okolini. Otvaranje ventila kod različitih pretlaka i podtlaka postiže se postavljanjem dodatnih utega na paletu.
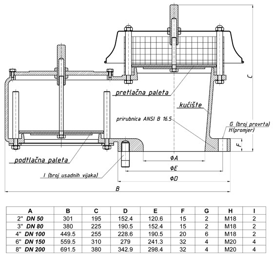
DIŠNI VENTIL tip DVER (pretlak – podtlak)

Dišni ventil izveden je tako da omogućuje dugotrajan i siguran rad u svim uvjetima uz minimalno održavanje. Kućište ventila izrađeno je iz lijevanog aluminija, a vodilice i palete iz nehrđajućeg čelika. Dijafragma je iz gume otporne na utjecaj medija u rezervoaru. Dišni ventil je standardno podešen na pretlak od 0.22 kPa i podtlak od 0.22 kPa ili prema zahtjevu naručioca.